田舎暮し情報館@不動産JP
NEW

物件情報詳細

  • 中古一戸建

物件名 残り少ない本格古民家

物件ID61284

業者名株式会社予防医療協会不動産部 電話025-525-7238

  • 価格
    566万円
クリックで拡大
頑丈な外回り(外観)頑丈な外回り(外観)
外回り(外観)外回り(外観)
(居間)(居間)
(居間)(居間)
客間客間
客間客間
(風呂)(風呂)
庭の花(玄関)庭の花(玄関)
頑丈な外回り(外観)
外回り(外観)
(居間)
(居間)
客間
客間
(風呂)
庭の花(玄関)
所在地
長野県上水内郡信濃町大字野尻字赤川3781-2   
交通
上信越自動車道妙高高原ICまで15分 国道18号線まで1分 新幹線長野駅まで40分 えちごときめきライン関山駅 5分 
土地面積
428.37m²(129.58坪)
建物(延床)面積
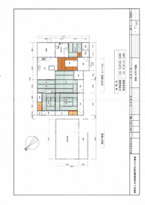
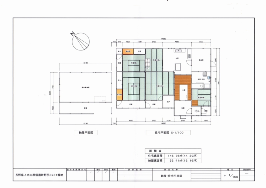
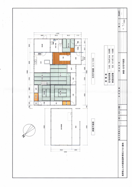
146.44m² (44.29坪)
建物詳細
構造: 木造草ぶき平屋建て(2階物置あり) 
間取り:4K 未登記
建築年月・現況:不明  空家
引渡可能日:相談
取引態様
専任  仲介手数料:330,000円
情報公開日
2025/11/05 次回更新予定日:2026/02/05
土地・地目
主な地目:宅地(現況:宅地)
    428.37m²(129.58坪)
その他の地目:なし
合計面積:428.37m²(129.58坪)
敷地の権利形態
所有権
接道・角地
敷地東面7m幅公道に15m接続
私道負担・舗装
ありません  舗装有り
地勢
平坦
都市計画 用途地域 建蔽率・容積率
区域外指定無し 60% 200%
その他法令上制限
ありません
設備
電気:中部電力 ガス:プロパン
飲用水: 公営 排水: 側溝
トイレ: 汲み取り(浄化槽設置可能)
  • その他設備:
特にありません
別荘用 営業用土地 営業用(店舗・事務所・ホテル等) 貸別荘(リゾートマンション) 現況空家 駐車(2台以上可) 温泉が近い 駅から15分 小学校迄30分 小学校迄路線バス 医療機関5km
物件概要(特徴)長野県と新潟県の県境い赤沢にあります
この集落は4軒ありますが居住は1軒です
本格古民家をお求めなら一見の価値があります
ここがポイント!周辺一帯がスキ-場です 黒姫 飯山 飯綱 斑尾  杉野原 池之平 赤倉  各スキ-場とゴルフ場
備考(建物情報、リフォーム含む)本当の古民家(現在は屋根がトタン葺)
備考(敷地)隣接北側土地に落雪する
ハザード、マップ情報※ハザード、マップ情報 https://disaportal.gsi.go.jp/
一般的な地形的傾向を述べている。 一番信頼性がある物件周辺の住人に確認することです。

取扱い業者このページの先頭へ戻る

株式会社予防医療協会不動産部

安心の予防医療協会
社名のとおり高齢者のために相続 遺産事務が本業です。しかし土地建物の扱いも発生してきました。色々な形でお役に立ちたいと思います。古里の空き家無人家屋の対策 得意です。 又、相続手続き含む要解体無人空き家古家別荘 ペンション ロッジ 高額買い取ります 現地確認ご相談ください

秋田県男鹿半島安全寺出身   アマチュア無線局 JAφTFN局長 同業者の皆さん空き家をこのサイトで売ってみませんか 田舎の暮らし 地方の生き方 あなたの生き方に力を貸します HAM 局 JAφTFN  あれこれ片付け草刈り専門の安心仕事集団がおりますお困りの時はご連絡ください
住所〒943-0153
新潟県上越市鴨島1丁目5番12号
TEL本社:090-4919-5839/ yoboui1@mbr.nifty.com
営業:025-525-7238
FAX025-525-7201
URLhttp://www.hudousan.jp/best/00064
宅建免許番号新潟県知事(5)第4664号
所属団体名(社)全日本不動産協会・(社)不動産保証協会
代表者安田八郎
主力営業エリア新潟県 長野県

お電話でのお問い合わせ

025-525-7238☆「田舎暮し情報館を見た」とお問い合わせください

025-525-7238☆「田舎暮し情報館を見た」とお問い合わせください

営業時間 8:30~18:30電話夜9時までOK
定休日 年末 年始
担当者 安田八郎 宅地建物取引士 一級古民家鑑定士 賃貸不動産経営管理士

※お電話番号をお確かめの上お電話くださいますようお願い申し上げます。

今日は、代表の安田八郎です。 昨今は空家問題がクローズアップされていますが、私は、かなり前から、地元でこの問題と取り組んで来ました。 そして、新たに移り住む人にも信頼され喜ばれる、四季折々の風土を楽しみ地域に根ざした生活を見つけていただく。そんな暮らしを支援したいと考えております。 資格 アマチュア無線局 JAφTFN 宅地建物取引士 カラ-テレビ修理技師 損害保険普通代理店資格  
ペンション・ログハウス・ホテル・旅館・別荘・民家 売却、買い取り、仲介・斡旋 妙高市赤倉 池之平 杉野沢 伺います この道 50年となりました。 まだまだ、地域に必要とされていると実感しています。  

取扱物件一覧

賃貸物件一覧

田舎暮らし情報館を介して、売り主にそのままメールが届きます。
その後の双方間のいかなるトラブルに対して当サイトは一切の責任は負いません。

資料請求・お問合せ

    問合せ物件名必須

    ※問合せ物件名は変更しないでください

    お名前必須
    フリガナ必須
    ご年齢
    郵便番号
    住所
    番地・建物名
    メールアドレス必須

    【注意】資料請求受付完了後に、確認のメールをお送りいたします。

    電話番号必須  連絡希望時間(任意) 
    ご希望の連絡方法
    お問い合わせ内容

    ※必須購入方法 物件の利用法

    【その他ご希望、ご要望等があればご記入ください。】

    地域やネット環境によってフォームが使用できない場合は、下記SNSかメールから直接お問い合わせください。

    最近人が検討しています
    物件検索